UBICACIÓN: Villa Lugano – Ciudad Autónoma de Buenos Aires
AÑO: 2010
SUPERFICIE: 118 m²
DESCRIPCIÓN: Los departamentos en PH, son ideales para la refacción y/o remodelación sobre todo para este tiempo en que necesitamos adaptar los lugares a los nuevos usos.
Estos departamentos permiten “crecer” con nosotros.
De hecho, este departamento resuelve las
necesidades de una familia en crecimiento.
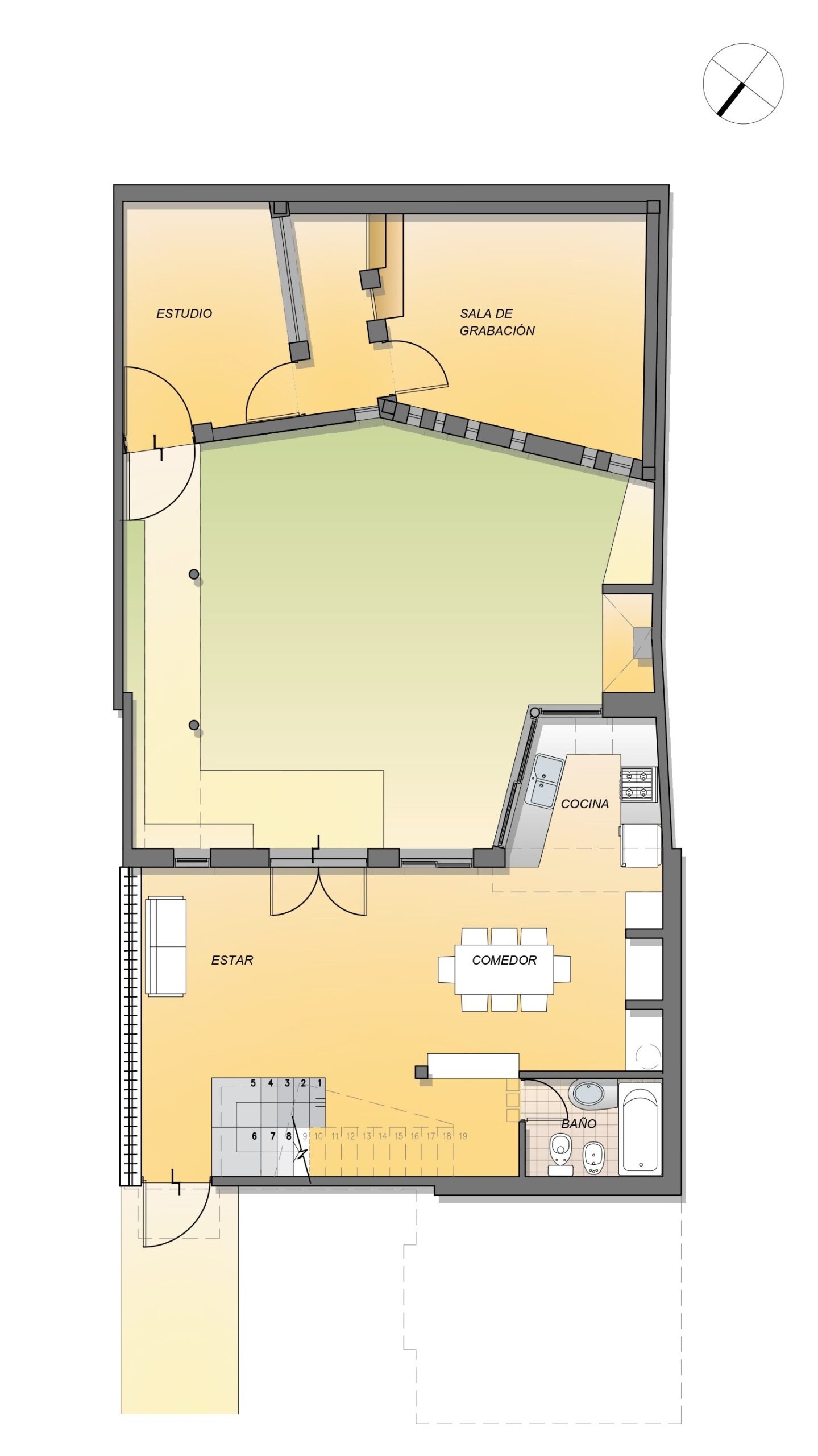
En donde también se requiere de una sala de
música y grabación insonorizada, por las actividades de Tochi.
Refuncionalizamos y ampliamos la casa, con la
familia viviendo en ella, que esto también es un desafía a la hora de realizar
modificaciones en nuestra casa.
El departamento era de planta baja, con
cubierta de losa.
Se realizó la ampliación de la vivienda sobre
la planta alta y al final de la obra se agujereó la losa para colocar la
escalera metálica que une ambas plantas. La apertura de la losa requirió de un
(1) día de trabajo, en donde los propietarios, durante el día se fueron.
La planta alta cuenta con tres (3) dormitorios
amplios y baño.
Cuando la planta alta estuvo ampliada, se
procedió a remodelar la planta baja.
Se amplió la cocina integrada al
estar-comedor. De esta manera se agrandó el sitio del estar comedor.
Los baños quedaron alineados, para facilitar
las instalaciones.
Las cubiertas de las ampliaciones se
realizaron en chapa galvanizada.





